Spații comerciale și de birouri
pentru afacerea ta

Cantonului
Str. Cantonului, nr. 1 -
deschide in Google Maps
Era
Str. Fabricii de Chibrituri, nr. 9 -
deschide in Google Maps


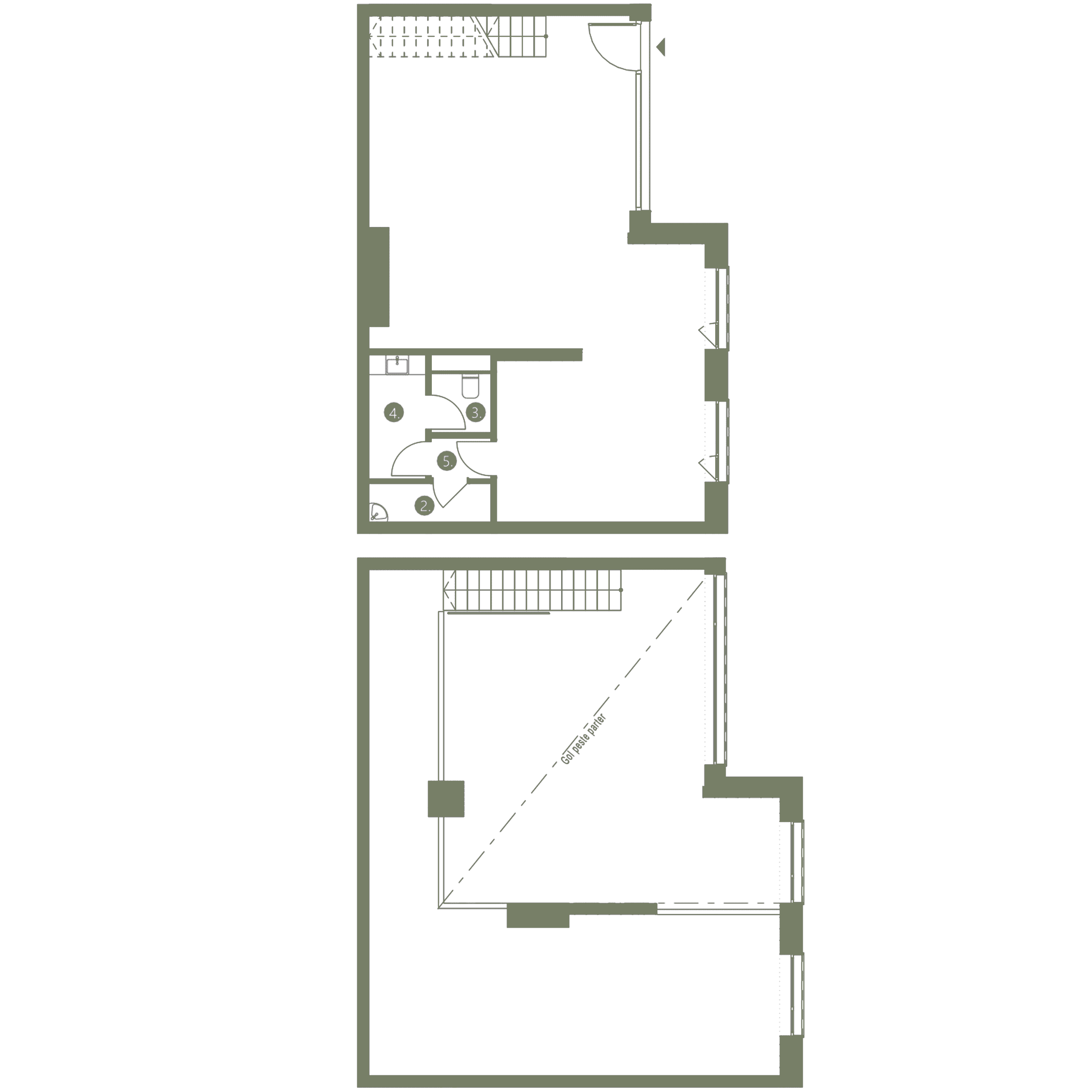
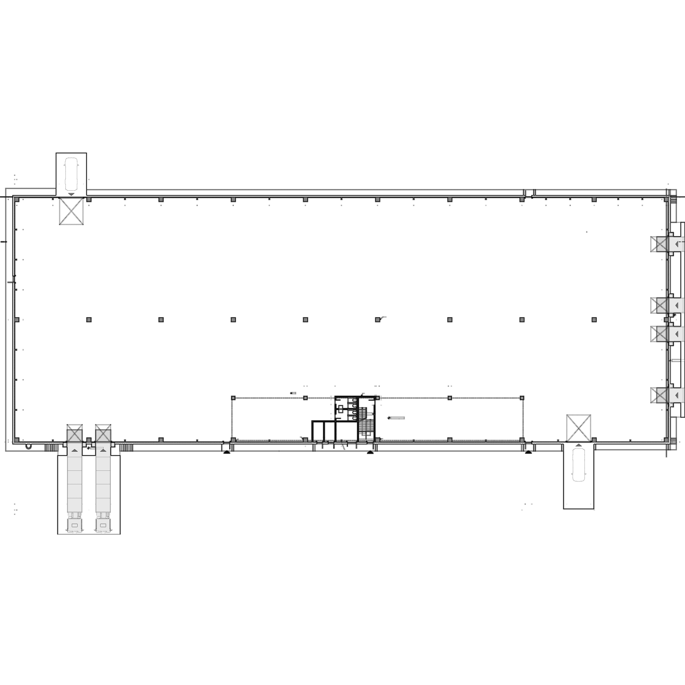
R1C002 -
116 mp

R1C003 -
163.3 mp

R1C007 -
164 mp

R1C006 -
141.3 mp

Inactiv
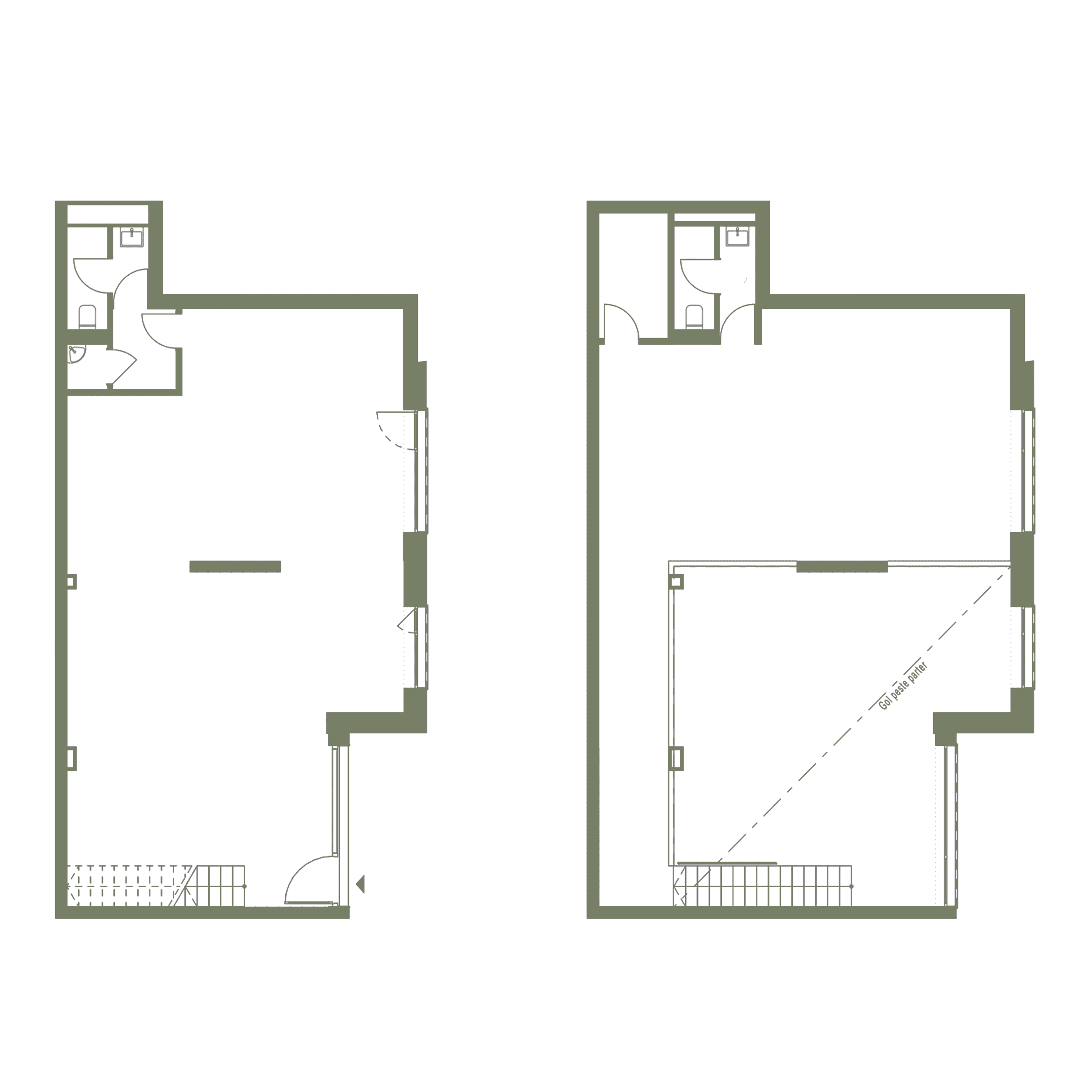
R1C008 -
99.9 mp

Inactiv
R1C009 -
99.9 mp

Inactiv
R1C010 -
99.9 mp

Inactiv
R1C011 -
99.9 mp

Inactiv
R1C012 -
99.9 mp

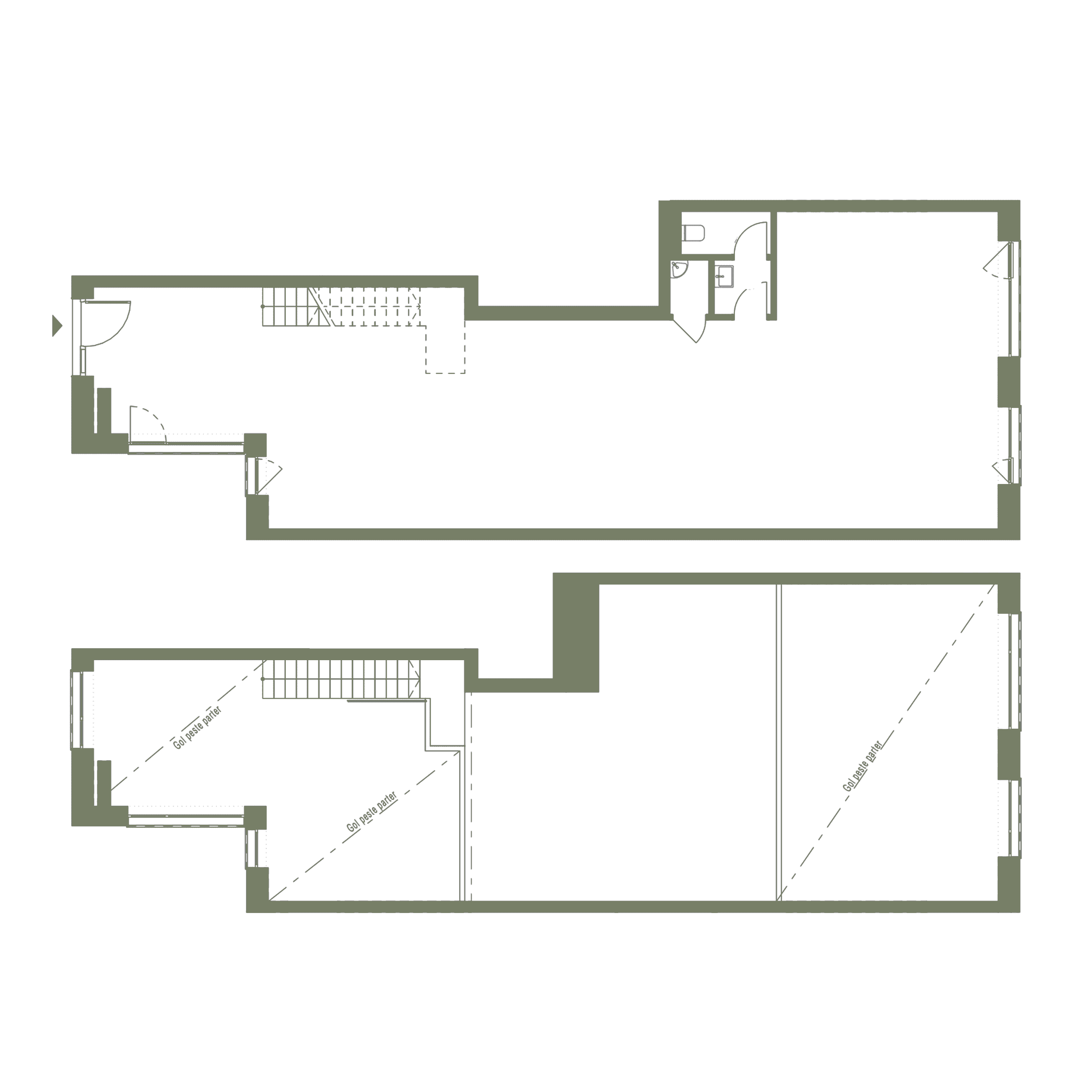
R1C015 -
1277.67 mp

R1C016 -
172.12 mp

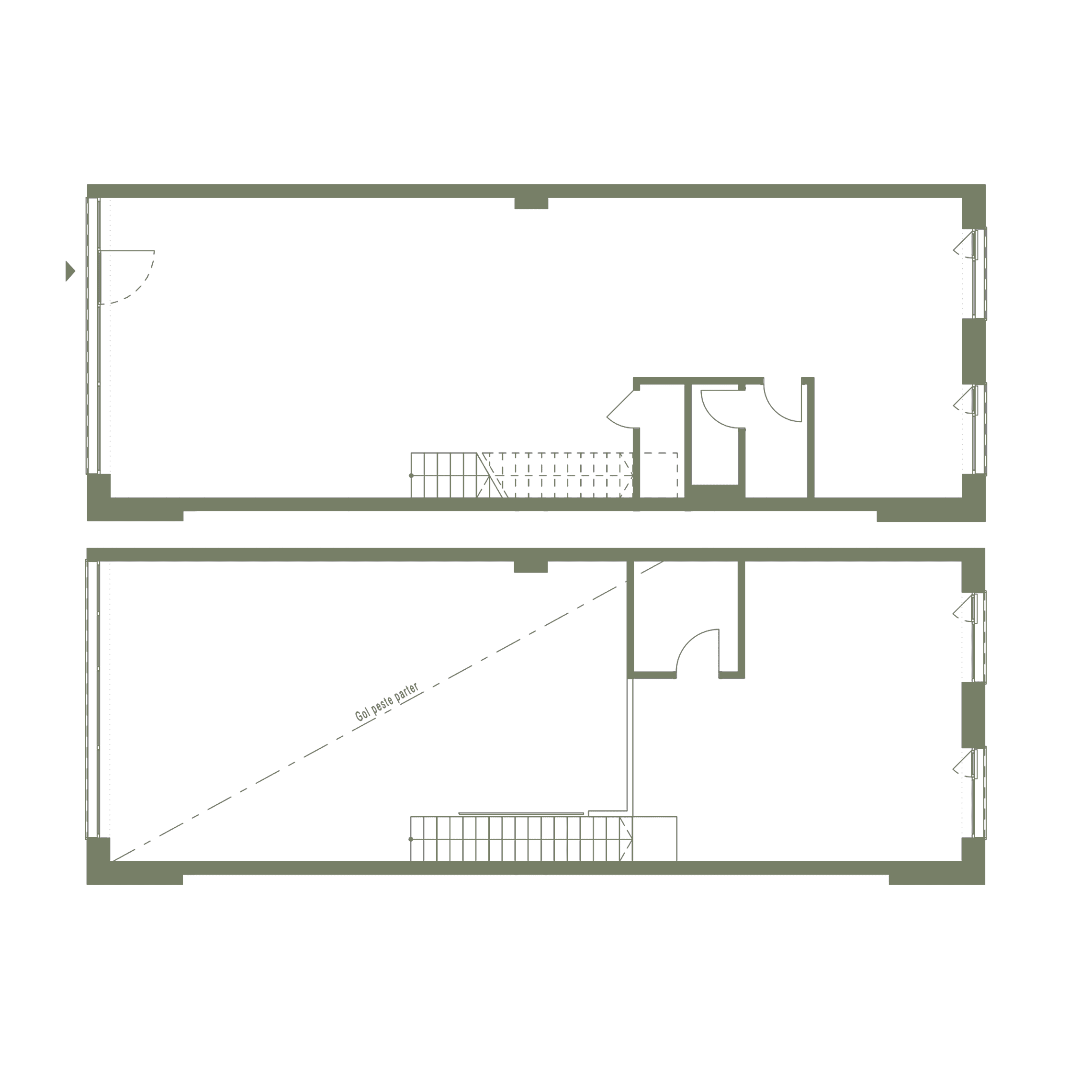
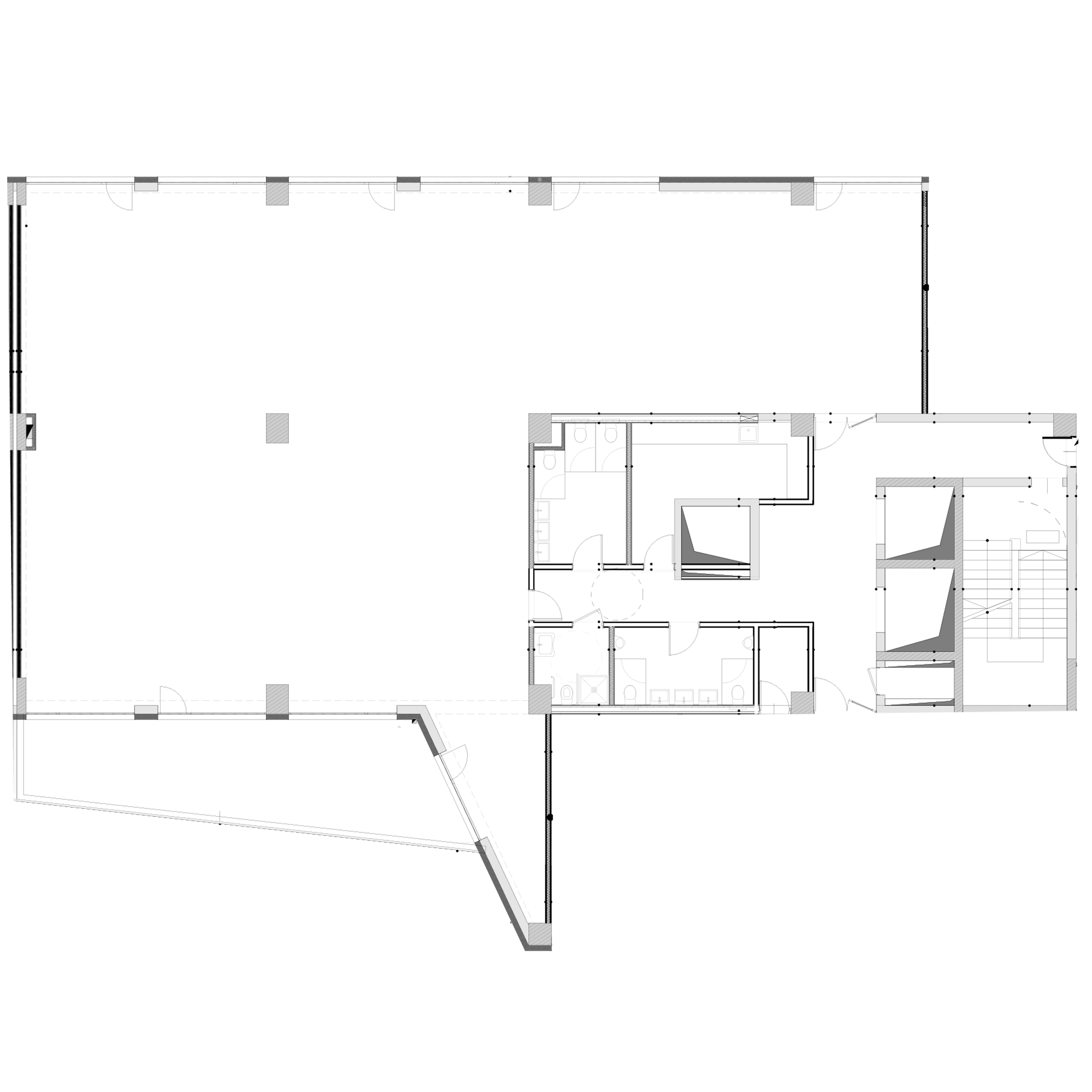
C01 -
231.4 mp

C02 -
98 mp

C03 -
204.6 mp

C04 -
161.3 mp

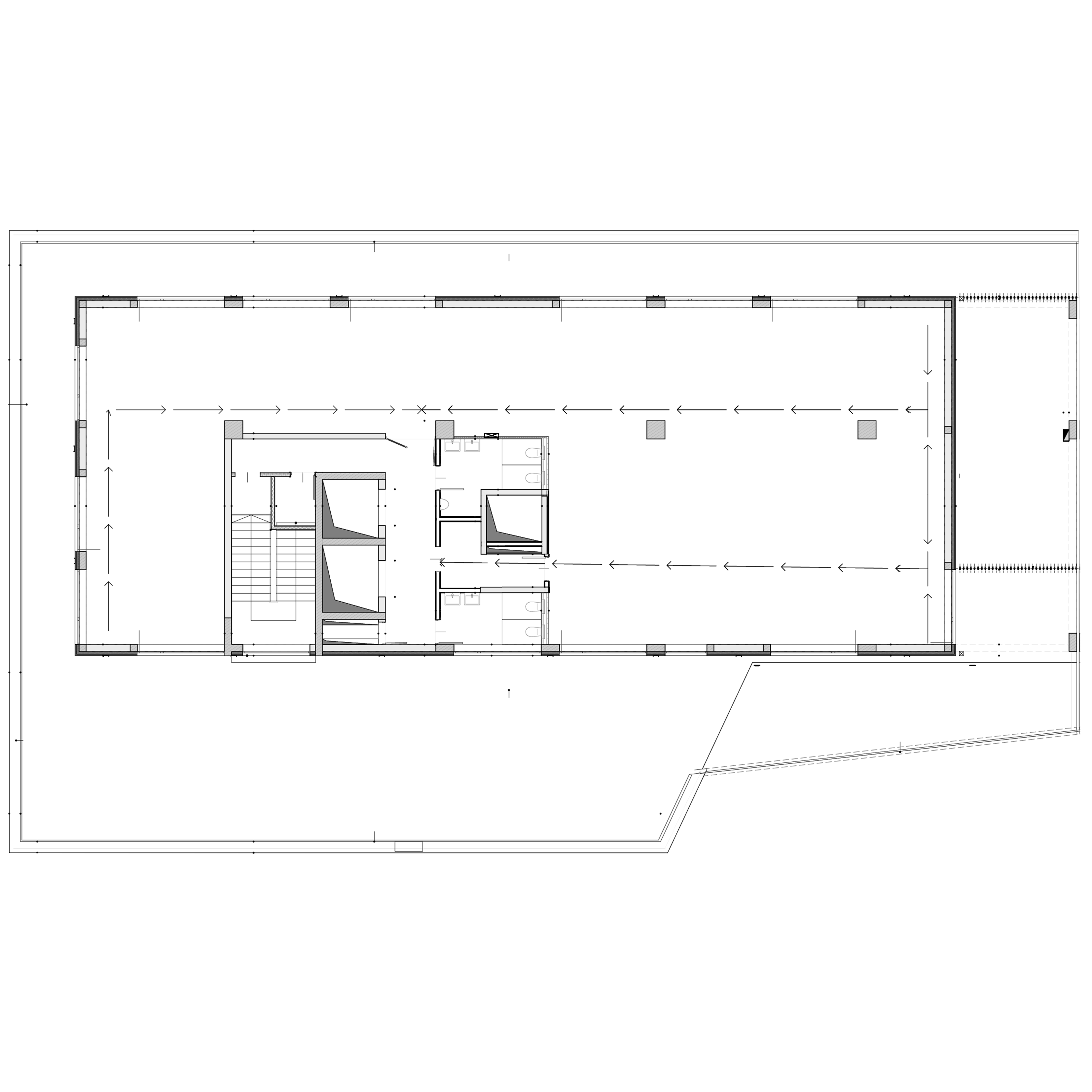
6 -
323.43 mp

7 -
314.83 mp

69 -
313.48 mp

70 -
286.96 mp

C05 -
46.7 mp
Someșului 15
Str. Someșului, nr. 15 -
deschide in Google Maps
Via
Str. Colinei, nr. 2 -
deschide in Google Maps










